Апартаменты в Оспедалетти
Элегантный интерьер этих апартаментов можно охарактеризовать как смешение традиционного классического интерьера с современными трендами в дизайне и технологиях. Это позволило создать эклектичный интерьер, гармонично вписанный в классическую архитектуру резиденции с высокими потолками, и актуальный своими интерьерными решениями.



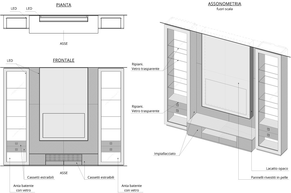
Тщательно подобранные оттенки и фактуры облицовочных материалов позволили создать многослойный интерьер, где гладкость кожи деликатно контрастирует с натуральной фактурой шелка в портьерах и отделке стен, а матовость нубука - с полированным лаком эбена.









Композиция кухонной мебели была реализована согласно 3D концепции и с учетом функциональности и технических требований по оборудованию. Вытяжка, встроенная в остров, имеет выброс воздуха в канал за счет воздуховода, проложенного в полу.
Раскладка шпона эбена под 45 градусов на дверцах со стороны столовой поддерживает рисунок на столешнице обеденного стола, также выполненного по индивидуальному дизайну.
Раскладка шпона эбена под 45 градусов на дверцах со стороны столовой поддерживает рисунок на столешнице обеденного стола, также выполненного по индивидуальному дизайну.




Тонкое контрастное сочетание классического стиля с современным прослеживается во всех комнатах. Современный дизайн текстиля портьер и подушек дополнен классическим позументом. В настольных лампах ручной работы объединились современный глянец керамики с неординарной интерпретацией классических орнаментов в золотом декоре.





Использование мебели по индивидуальному проекту, например, как эта композиция в ванной комнате, позволяет добиваться максимальной функциональности и при этом создать выразительные и эффектные интерьерные решения.






