Резиденция в Ницце
Интерьер этих апартаментов был вдохновлен образом Лазурного берега Франции, роскошной архитектурой резиденции в стиле Belle Epoque и великолепным видом, открывающимся из окон данных апартаментов на Английскую набережную.
В гармоничном интерьере с элементами Ар-деко основой стала деликатная работа над деталями и материалами, перетекание которых создало единый сценарий развития интерьера.

серо-кофейным оттенком, который задал тон всему интерьеру.











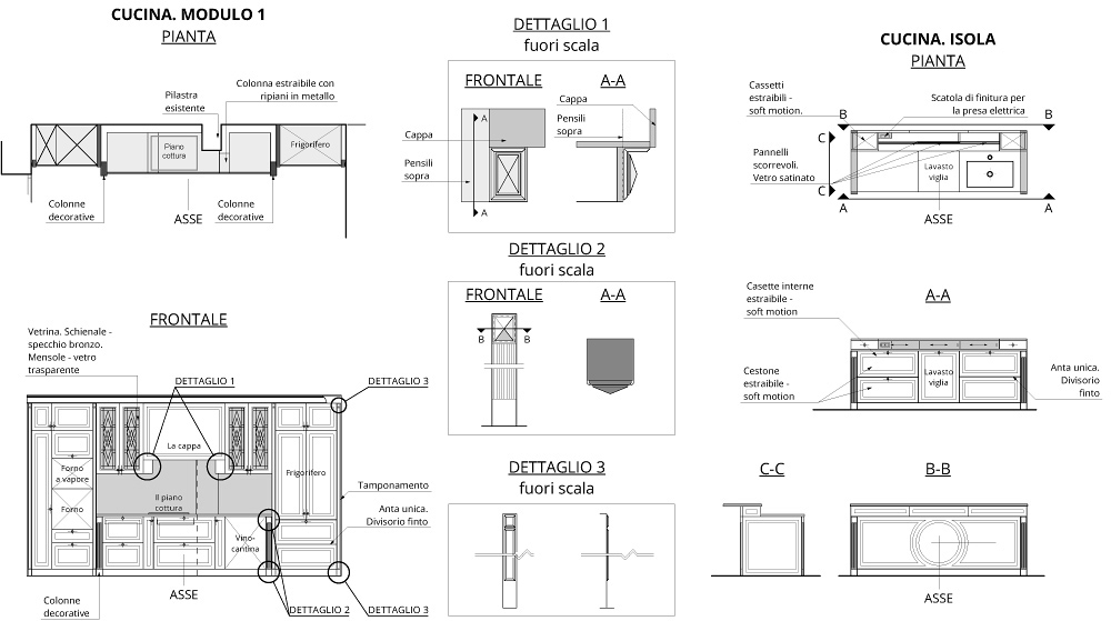
Кухня была разработана по индивидуальному дизайну специально для данного проекта с учетом нестандартных размеров и конфигурации стен, что позволило гармонично вписать композицию в существующую внутненнюю архитектуру.





Голубой оттенок также поддержан в отделке обеденных стульев от Longhi Loveluxe.

Важным характеризующим моментом при работе над проектом является гарантия результата - т.е. реализация предложенной концепции интерьера.





Именно сочетание материалов, работа на контрасте фактур, перетекание оттенков делает интерьер гармоничным и многослойным.


Специально разработанная под проект встроенная мебель позволяет визуально выровнять неправильную геометрию помещения, а оригинальные декоративные решения подчеркивают эксклюзивность интерьера.
















Предметный дизайн является сильной стороной нашей студии - мы не только полны идей и готовы создавать прототипы под каждый из проектов, но и оснащены производственной базой, позволяющей с высоким качеством реализовывать неординарные идеи.








