RU
EN

Интегрированная мебель

Все элементы данного помещения - панели буазери, гардеробная комната, комоды и прикроватные тумбы - были разработаны как формообразующие части единого внутреннего пространства. Использование и перетекание фактур в отделке создает единство интерьерных решений, подчеркивая эксклюзивность данного дизайна.
 
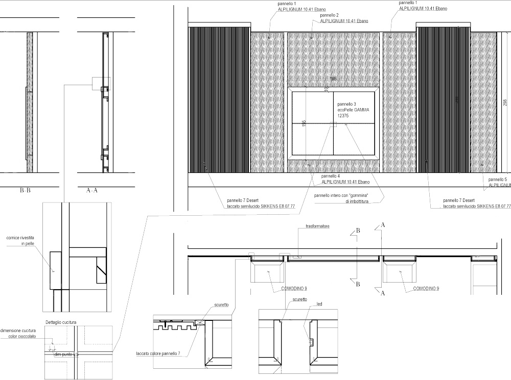
Композиция простенка с кроватью представляет собой центральное панно в отделке палисандром с изголовьем из натуральной кожи и полуколоннами со встроенной декоративной подстветкой, которые примыкают к фрезерованным лакированным панелям. Прикроватные тумбочки являются продолжением декоративных колонн, в отделке ящиков также использована натуральная кожа.
Конструкция центрального простенка разработана как самонесущая и имеет встроенные каркасы для раздвижных перегородок, а также предусматривает трассировку кабелей для аудио-видео оборудования. Облицованная с двух сторон панелями в отделке палисандром с фрезерованными лакированными панелями в центре, она продолжает развитие интерьера.
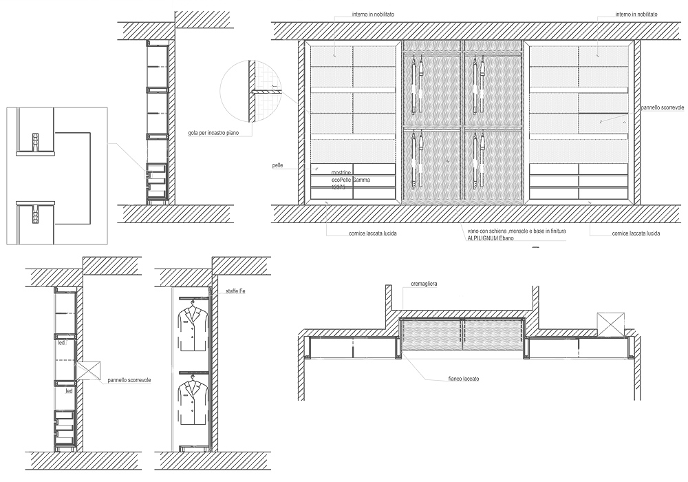
Гардеробная комната скомпонована симметрично - по бокам расположены лакированные витрины с открытыми полками и комодом в отделке фасадов натуральной кожей, а в центре находится модуль с полками и штангами в контрастной отделке палисандром. Обратная сторона самонесущей перегородки облицована зеркалом с подсветкой, что помимо функциональности, визуально увеличивает пространство.
Проект в работе Архитектура виллы стиль которой сочетает в себе минимализм с нотами модерна, с преобладанием
белого цвета и с контрастными элементами из темного металла.
Чистые линии и формы преобладают в интерьере, а светлые тона натуральных материалов
дополнены насыщенными элементами - формируя сбалансированную и в тоже время многогранную основу
для всего интерьера, который способствует спокойному времяпрепровождению и отдыху.
FacebookYouTubePinterestInstagram
Десктоп версия